-
《外観》 ■晴れ渡る空のもと、暖かい日差し、心地よい風を感じながらの生活が始まります。
-
《外観 完成予想図》 ■デザイン住宅。落ち着きのあるトーンでまとめた外観。長年住むうちに深い愛着を感じることの出来る、飽きのこないシンプルなデザインです。
-
《完成予想図》 ■機能性とデザイン性を兼ねそろえた理想の住まい。美しい外観やくつろぎの室内空間にふさわしい素材・形・色彩、上質感に満ちております。
-
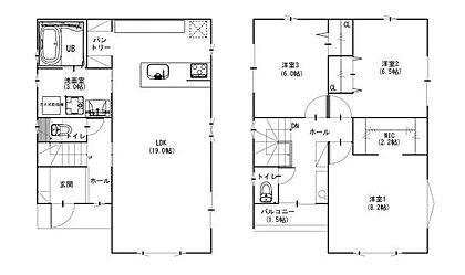
《間取り》■リビング中心の新生活。光を取り入れる開放的な設計で居心地の良い時間を演出します。広々、19.0帖のLDKは明るくみんなが集まる快適空間。
-
ビッグ・エー横浜平戸店まで833m、平戸の住宅街近くにあるディスカウントストア。駅からは離れますが駐車場完備なので車利用可能
-
オーロラモール東戸塚まで1191m、西武百貨店 イオンスタイルなどが出店しています。
-
島忠東戸塚店まで737m
-
横浜市立平戸中学校まで614m、平戸中学校に隣接した「平戸果樹の里」では、浜梨をはじめ、みかん、かきなど四季折々の果樹の成長を見ることができます
-
横浜市立平戸小学校まで624m、もの・こと・人との関わりの中で自分の在り方を共生という視点から考え自立した人間として感性豊かに生きていく力を育みます
-
岩崎学園 東戸塚保育園まで1282m、0歳(産休明け)から 平日7:00〜19:30 土7:00〜18:30
-
戸塚第一医院まで994m、診療科目:内科、整形外科、外科、泌尿器科、皮膚科
-
平戸みはらし公園まで559m、坂を少し上ると、散歩に寄りたくなる見晴台があります。春には地域の方々が大切に育てた花壇や桜、つつじが綺麗です
-
川上公園まで632m、公園は広い広場とその横にパークゴルフ場があります。 複合遊具やブランコがあります。
-
《リビングダイニング》 ■上質な時間を育む暮らしのメインステージ。寛ぎとご家族とのコミュニケーションを育む居心地のよい場所。
-
《リビング 完成予想図》 ■開放的で広いリビング。のびのびとくつろげるリビングは、家族のコミュニケーションの場として、みんなが集まる場所に。
-
その他
-
その他
-
その他
-
その他
-
その他
-
その他
-
その他
-
その他
-
その他
-
その他
-
その他
-
その他
-
その他
-
その他
-
その他
































